
24th April 2026
Stoney Lane
Wonderful to see the existing house opened up ready for steelwork installation.

10th February 2026
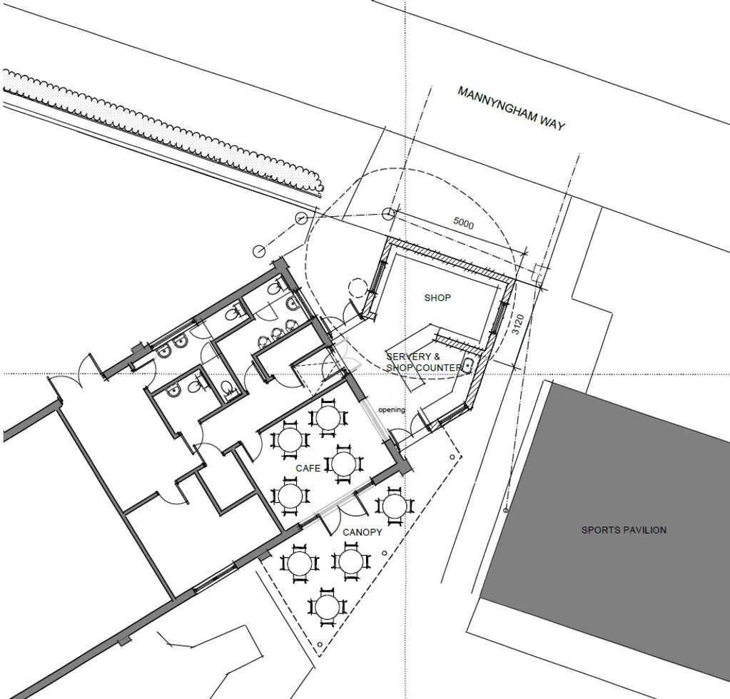
M&T Shop & cafe
We are delighted to be assisting with proposals for a new community shop & cafe in the village of Michelmersh & Timsbury.
Concept designs, utilising a converted shipping container, are developing ready for a funding bid to Test Valley Borough Council.

5th February 2026
Kings Worthy
A planning application has been submitted to Winchester City Council for this addition to a home, incorporating an open plan music/living room with a study mezzanine over.

3rd December 2025
DKW Engineering
The steel frame and cladding is now complete to this factory extension. Concrete floor to be poured next week.
20th October 2025
Burley
Construction of this new timber-framed house in the New Forest National Park is progressing well.

1st October 2025
Kings Worthy
Planning permission has been received for a garden room extension to the rear of this property.


